EXPLORATION CONSTRUCTIVE
Le Café Archi organisé par le Pays d’Art et d’Histoire du Haut-Béarn à Laruns a été l’occasion de revenir sur les multiples façons d’aborder la construction bois – structure (plancher, ossature, charpente), isolation (fibre de bois, paille) et enveloppe (bardage et couverture) – à travers plusieurs projets d’Osaa.
Une manière pour nous de partager quelques retours d’expérience et de poursuivre notre réflexion autour d’une architecture biosourcée, précise et adaptée aux contextes actuels.
Notamment autour de notions clefs telles que :
• déphasage et inertie pour le confort d’été,
• gestion des ponts thermiques et parois perspirantes,
• choix structurels et recours ponctuel au béton selon la nature des sols et les altimétries recherchées.
RÉNOVATION ET RÉHABILITATION
2023 Projet de conception
État Terminé
Maîtrise d’Ouvrage Privée
Localisation Bordeaux (33)
Programme Rénovation d’un appartement de 45m² dans un immeuble bordelais.
Description Le projet repense la distribution des espaces intérieurs autour d’un grand meuble central qui articule les pièces selon une gradation d’intimité depuis l’entrée. Ce schéma d’organisation permet de supprimer portes et couloirs distributifs, valorisant ainsi le volume à vivre et fluidifiant la circulation. Des arches soulignent les espaces de transition autour du meuble, qui fait disparaître rangements et fonctions techniques pour laisser place aux grandes fenêtres en enfilade.Le parquet ancien en pichepin restauré apporte de la chaleur au volume, tandis que les moulures conservées soulignent la marque du passé et la composition historique des espaces.
CONCEPTION, RÉNOVATION ET RÉHABILITATION
2025 Projet de permis de construire
État En cours
Maîtrise d’Ouvrage Privée
Localisation Sainte-Engrâce, Soule (64)
Programme Rénovation et réhabilitation de bâtis traditionnels souletins (environ 400 m²), conception d’une halle agricole (environ 200 m²) et de trois serres semi-enterrées.
RÉNOVATION ET RÉHABILITATION
2025 Projet de permis de construire
Maîtrise d’Ouvrage Privée
Localisation Talence (33)
Programme Rénovation-isolation de la façade et de la toiture nord en ossature bois d’une maison individuelle.
EXPLORATION CONSTRUCTIVE
Le Refuge Vagabond est une maison en ossature bois de 25 m² d’emprise au sol, pensée comme une unité autonome assurant un contrôle optimal de l’isolation et de l’étanchéité à l’air. Son enveloppe, traitée avec des enduits à la chaux et une toiture en bardeaux de bois, garantit des performances thermiques optimales. Autour de ce volume principal, les éléments extérieurs se développent librement, offrant des espaces intermédiaires en dialogue avec l’environnement.
L’ensemble est conçu à partir de matériaux biosourcés. L’eau de pluie est récupérée, et un poêle assure le chauffage. La maison peut être raccordée aux réseaux d’électricité et d’eau courante ou fonctionner en totale autonomie.
À l’intérieur, l’espace s’organise autour d’un « T » technique, intégrant la cuisine, les rangements, la salle d’eau et les sanitaires. Deux pièces carrées composent la chambre et le salon. Les combles, accessibles par une échelle, offrent un espace de rangement ou un couchage d’appoint. La VMC et le ballon d’eau chaude y sont dissimulés pour optimiser l’espace habitable.
Le nom « Le Refuge Vagabond » traduit la flexibilité du projet : cette architecture peut s’adapter à n’importe quel site, à condition que la façade avant soit orientée vers le soleil en fonction de l’hémisphère. Les claustras en bois, quant à eux, s’ouvrent et se ferment au gré des saisons pour moduler l’apport lumineux et la protection solaire.
Ce module peut également évoluer en un système plus vaste. Par addition d’unités, il est possible de composer un ensemble de 1200 m² intégrant plusieurs niveaux et un patio central, transformant ainsi cette micro-architecture en un véritable habitat collectif.
CONCEPTION ET RÉALISATION
2024-2025 Projet en cours de conception et de réalisation
État En cours, permis de construire accepté
Maîtrise d’Ouvrage Privée
Localisation Lacarry, Soule (64)
Programme Maison individuelle en ossature bois d’environ 100 m²
Description La maison s’inspire des bâtis traditionnels souletins et s’intègre discrètement dans le paysage. La forte pente des toitures en ardoise, combinée à des murs de surcroît, permet d’aménager des espaces à l’étage. Au nord, où le village s’étire dans le relief, les façades enduites à la chaux reprennent les codes vernaculaires de l’architecture locale. À l’opposé, la maison s’ouvre largement au sud-est, avec une façade en bois tournée vers le soleil.
La toiture se prolonge à l’ouest et au nord, formant une aile protectrice contre les intempéries océaniques. Elle abrite les espaces dédiés aux ateliers, à la fois intérieurs et extérieurs. Des terrasses en bois accompagnent le dénivelé naturel sous forme de gradins, tout en ouvrant généreusement la vue sur le paysage.
À l’intérieur, les espaces sont pensés pour allier efficacité et optimisation des surfaces. Une mezzanine aux lignes courbes, inspirée des gaves qui sillonnent la région, relie le balcon tout en permettant une double hauteur dans le salon, apportant fluidité et harmonie à l’ensemble.
CONCEPTION ET RÉALISATION
2024-2025 Projet en cours de conception et de réalisation
État En cours, déclaration préalable acceptée
Maîtrise d’Ouvrage Privée
Localisation Bordeaux-Caudéran (33)
Programme Extension partielle en ossature bois d’une maison individuelle
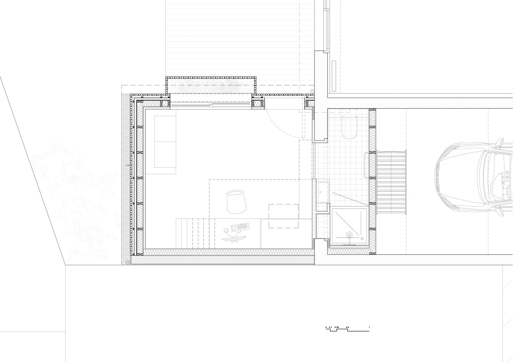
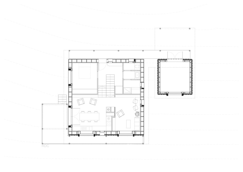
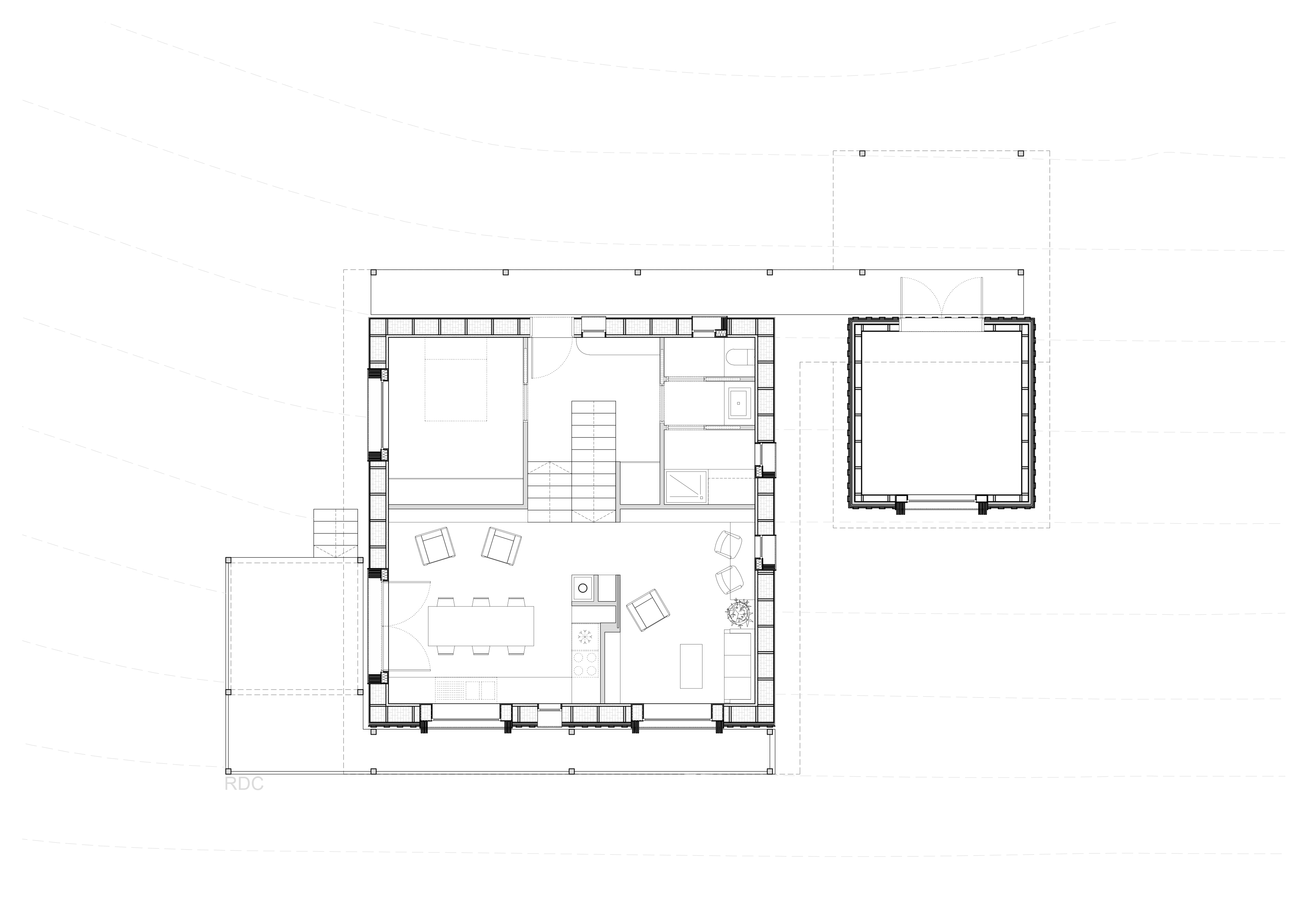
Description Le projet consiste en la création d’une chambre supplémentaire d’environ 15 m², intégrant un lit en mezzanine suspendu et une salle d’eau. Le module de la nouvelle chambre s’insère dans le volume existant du garage. Cette implantation permet de réorienter l’ensemble des espaces de la maison vers le jardin central, conçu comme un patio, tout en préservant l’unité architecturale du bâti et en intégrant des méthodes de construction durables. La toiture est partiellement rehaussée jusqu’au faîtage, offrant la hauteur nécessaire à l’aménagement du lit en mezzanine et à l’intégration des éléments techniques en plafond, au-dessus de la salle d’eau également implantée dans le garage. Malgré la surface réduite, l’agencement soigné permet d’offrir une chambre indépendante, confortable et fonctionnelle.
CONCEPTION ET RÉALISATION
2024-2025 Projet de permis de construire
État Le projet n’a pas pu être réalisé en raison d’une problématique foncière indépendante de la maîtrise d’œuvre.
Maîtrise d’Ouvrage Privée
Localisation Castillon d’Arthez, Béarn (64)
Programme Maison individuelle en ossature bois, remplissage paille – 100 m² SDP
Description Implantée sur un terrain en pente dans le Béarn, cette maison associe une structure bois, un remplissage en bottes de paille et un bardage ventilé. Son organisation en demi-niveaux accompagne la déclivité du site et distribue naturellement les espaces de vie. Compacte et bioclimatique, elle ouvre largement sa façade sud pour capter les apports solaires, tandis que balcons et avancées de toiture assurent la protection estivale. La volumétrie, simple et rationnelle, traduit une recherche d’efficacité constructive et énergétique.
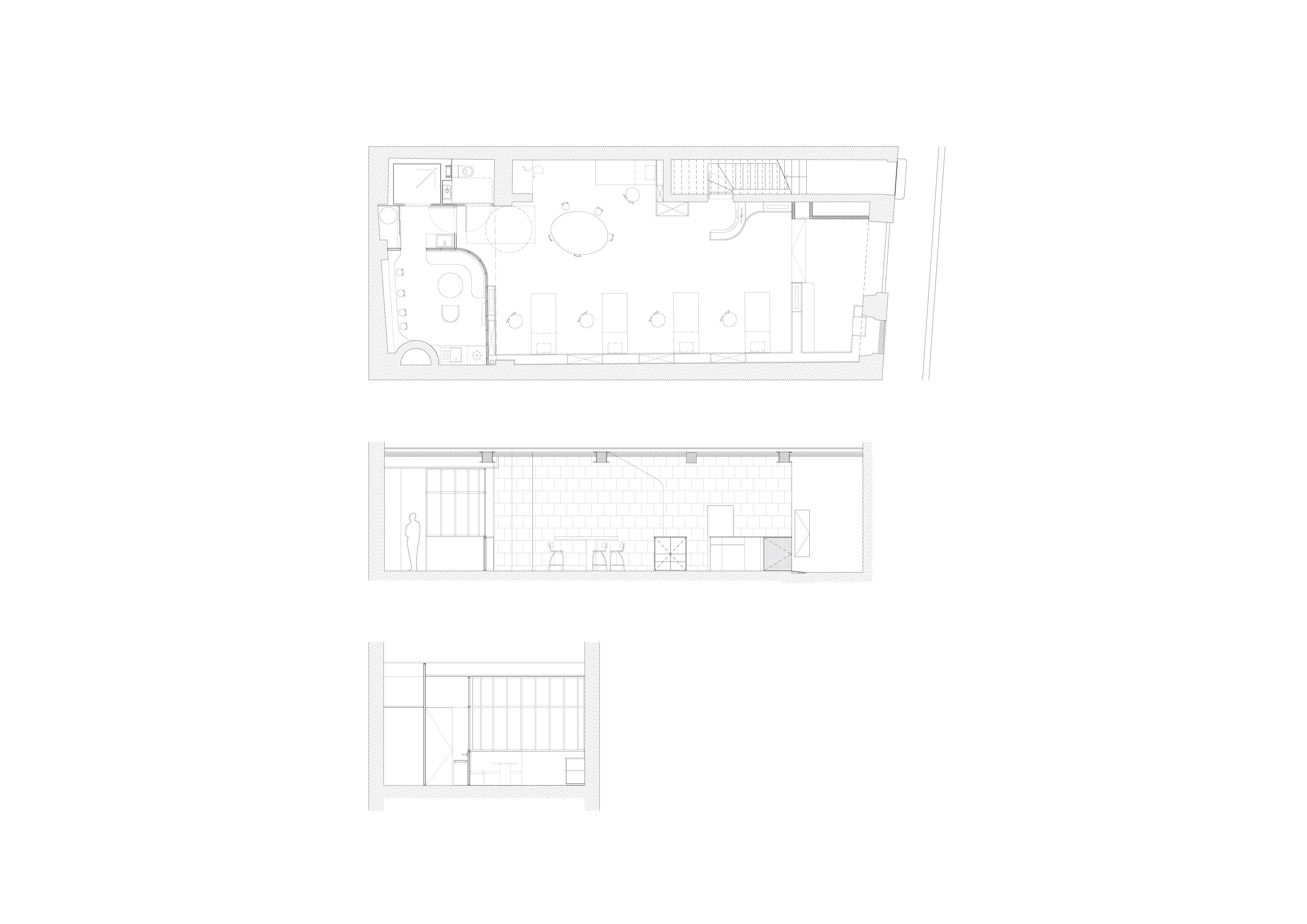
RÉNOVATION ET RÉHABILITATION
2023 Projet de conception
État Terminé
Maîtrise d’Ouvrage Privée
Localisation Bordeaux (33)
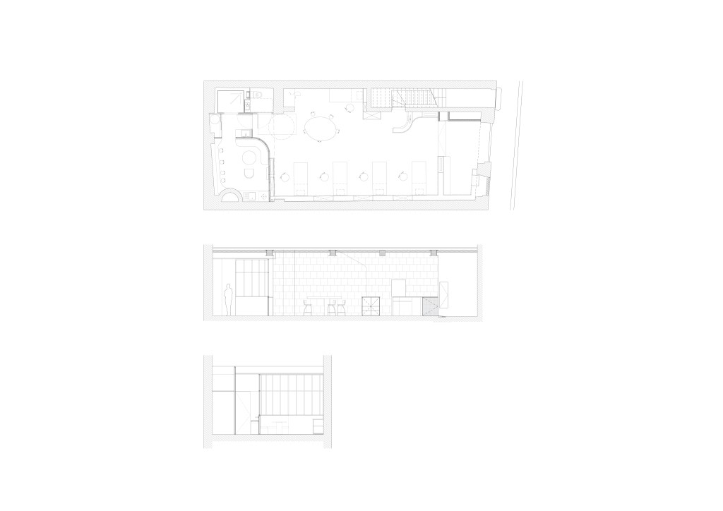
Programme Rénovation et réhabilitation d’un rez-de-chaussée d’immeuble ancien en salon de tatouage.
Description Le nouveau salon s’implante dans un volume en pierre calcaire bordelaise. L’aménagement s’organise autour d’un mobilier sur mesure en bois, aux lignes fluides et aux teintes vert d’eau, en résonance avec l’univers du tatouage. Ce mobilier définit les différentes zones programmatiques : accueil, postes de tatouage, rangements intégrés. À l’arrière, une verrière courbe à ossature bois isole les espaces de repos, tout en laissant circuler la lumière naturelle.
EXPLORATION CONSTRUCTIVE
Nid de rouge-gorge en pin, couverture zinc
41 × 34 cm | entrée Ø 5 cm
Réalisé par le menuisier-ébéniste Antoine Fieux
| _00 | Archives




















































































